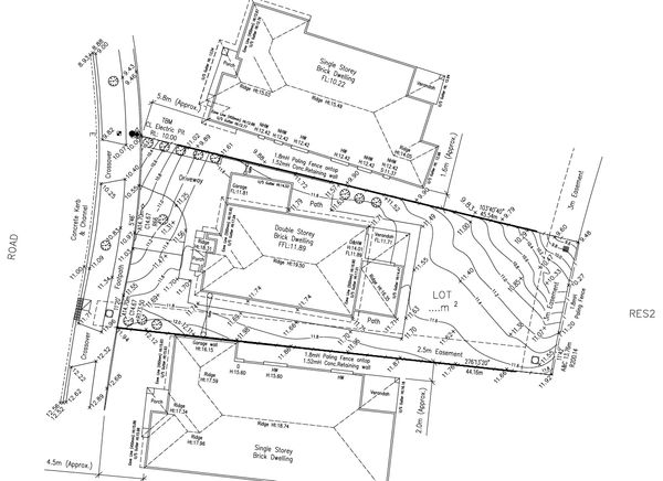
A detailed feature and level survey undertaken to an arbitrary datum or the Australian Height Datum (AHD), as specified. The survey includes contour intervals at 0.2 metres and records all relevant site features such as adjoining dwellings, boundary fences, vegetation, road details, and other visible services. Suitable for design, planning, and development applications for both vacant and developed sites.
Vacant site survey $500+GST
Existing dwelling survey $1000+GST
AHD $200+GST
The above price is for land size less than 1000m2, please get in contact if land size is larger.

As included above the survey coverage extends to three dwellings on either side, five dwellings opposite, and relevant dwelling details to the rear. Ideal for assessing neighbourhood character and compliance with council requirements.
Neighbourhood survey to AHD $2000+GST
Locate the position and height of existing slabs, with all visible drainage points accurately identified.
Slab check $400+GST
Ph: 0435 105 068 Email: vicwestsurveying@gmail.com
Open today | 09:00 am – 05:00 pm |
We use cookies to analyze website traffic and optimize your website experience. By accepting our use of cookies, your data will be aggregated with all other user data.